



















Se vinde exact cum se vede în poze, ideal pentru cine vrea să-și facă totul după propriul gust
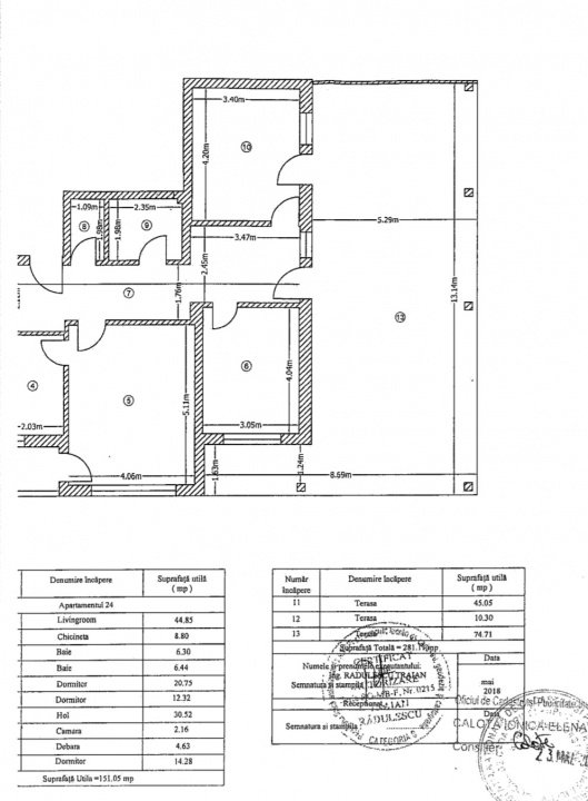
Acest penthouse din Voluntari este potrivit pentru cine vede dincolo de stadiul actual și își dorește un spațiu pe care să îl transforme exact așa cum își imaginează. Vorbim despre un apartament foarte generos, situat la ultimul etaj 3/3, cu lumină naturală, intimitate și o priveliște deschisă, are 151 mp utili, la care se adaugă aprox. 130 mp de terase și balcon, plus un pod încăpător pentru depozitare — un avantaj real, mai ales pentru familii sau investitori care știu cât de util este un spațiu suplimentar.
Compartimentare :
-Living open space cu bucătărie
-3 dormitoare
-3 băi
-Hol generos
-1 balcon
-2 terase mari
-Pod pentru depozitare
Apartamentul se vinde exact în stadiul în care este, fără finisaje impuse. E perfect pentru cine vrea să aleagă singur gresia, parchetul, culorile, stilul – tot ce ține de identitatea locuinței. Practic, cumperi o structură solidă și luminoasă, pe care o personalizezi de la zero, fără cheltuieli aruncate pe ceva ce oricum ai fi schimbat, are toate utilitățile, încălzire prin calorifere și pardoseală, ventiloconvectoare, iar actele sunt pregătite pentru vânzare.
Este o alegere bună atât pentru investiție, cât și pentru cine își caută un penthouse diferit, cu spațiu real, terase mari și libertate totală în amenajare.
Comision 0!