





Va propunem spre vanzare casa P+1 cu suprafata totala de 87mp plus o terasa de 18mp si subsol de 10mp pe strada Primaverii din Comuna Berceni.
Casa nu este duplex, este lipita la calcan (pereti separati cu izolatie), iar deja casa dreapta a fost vanduta, a ramas doar stanga.
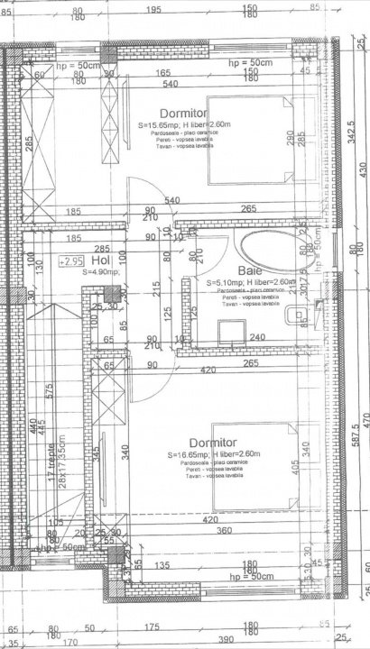
La parter avem o baie, bucatarie, living si o debara, iar sus la etajul 1 avem doua dormitoare si o baie mare.
Casa se preda "la cheie", cu gresie, faianta, parchet si sanitare.
Va asteptam la o vizionare!