







Casa cu 4 camere in Cumpăna | Strada Brizei | Proximitate ieșire autostrada
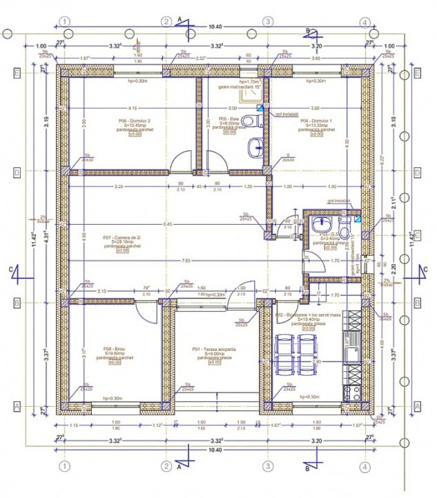
Suprafață totală: 89,9 mp, din care 9 mp terasa acoperita | Dormitoare: 3 | Bai: 2 | Teren: 400 mp
Incalzire: Instalatie prin pardoseala | Personalizare totală sau achiziție la roșu
Pret la alb: 149.000 Euro
Vă propun spre achiziție o casă cu 4 camere situată în Cumpăna, o proprietate ce îmbină calitatea construcției cu o locație strategică, fiind poziționată în imediata proximitate a noii legături cu autostrada. Amplasată pe un teren de 400 mp, locuința este ideal compartimentată pentru o familie, oferind 3 dormitoare și 2 băi, totul fiind gândit pentru un confort modern, fapt susținut și de instalarea sistemului de încălzire prin pardoseală.
Marele avantaj al acestei proprietăți constă în flexibilitatea totală oferită cumpărătorului: deși în prezent casa se află la stadiul de roșu, oferind astfel transparență deplină asupra calității structurii și a materialelor folosite, aceasta se va preda finalizată „la alb”. Acest lucru înseamnă că viitorul proprietar are libertatea deplină de a-și alege finisajele și materialele interioare după bunul plac, transformând casa într-un cămin personalizat. Totodată, pentru cei care doresc să gestioneze singuri restul lucrărilor, există și opțiunea achiziției în stadiul actual, la roșu. Este o locuință construită cu responsabilitate, care oferă avantajul rar de a decide detaliile finale într-o zonă cu acces ultra-rapid către Constanța.
Pentru detalii si vizionari, nu ezitați sa ma contactați!