
























Imobil de vânzare în Constanța – Centrul Vechi - Piata Ovidiu - Strada Petru Rareș nr. 7, oportunitate rară de investiție și renovare
Dacă sunteți în căutarea unei proprietăți cu istorie și potențial imens, această casă de pe strada Petru Rareș reprezintă o oportunitate rară.
Clădirea istorică(nu este monument istoric), construită între 1909 și 1916, se află în centrul orașului, aproape de Piața Ovidiu și de portul Constanța, oferind o locație ideală pentru rezidență sau investiție imobiliară.
Arhitectură deosebită și potențial imens:
Cu o arhitectură neoclasică influențată de stilul francez, această casă este o bijuterie imobiliară.
Balcoanele din zidărie, ancadramentele elegante ale ferestrelor și cornișa rafinată o fac o clădire unică în centrul Constanței. Deși necesită renovare, imobilul oferă potențial pentru a deveni o locuință modernă sau o investiție valoroasă pe piața imobiliară din Constanța.
Investiție imobiliară cu potențial de restaurare:
Această proprietate de patrimoniu are toate condițiile pentru a fi transformată într-o locuință de lux sau într-un obiectiv turistic de mare valoare. Renovarea clădirii conform standardelor moderne va păstra însă farmecul său autentic, oferind o combinație perfectă între istorie și confortul unui cămin modern. Această oportunitate de renovare este ideală pentru investitori sau cumpărători care doresc să adauge valoare imobilului.
Locație centrală, în apropiere de atracțiile principale din Constanța:
Casa se află într-o zonă cu o valoare imobiliară ridicată, aproape de atracțiile istorice ale Constanței, inclusiv Piața Ovidiu și plaja Neversea - Plaja Modern. Această locație centrală face ca imobilul să fie ideal atât pentru locuință, cât și pentru o afacere sau o investiție pe termen lung. În plus, zona are un potențial imens de apreciere în valoare, datorită dezvoltării continue a orașului.
De ce să investiți într-o casă cu personalitate istorică în Constanța?
Investiția într-o casă asemenea acesteia este nu doar o oportunitate imobiliară excelentă, dar și o oportunitate de a păstra istoria și cultura orașului Constanța. Această proprietate reprezintă o oportunitate rară de a trăi într-un loc cu o poveste, dar și de a adăuga valoare pe piața imobiliară.
Contactați-ne pentru detalii și vizionări!
Nu ratați această oportunitate de a deveni proprietar al unei case de patrimoniu în centrul Constanței.
Contactați-ne acum pentru mai multe informații și pentru a programa o vizionare a acestui imobil deosebit.
Observatii:
Casa nu este declarata monument istoric.
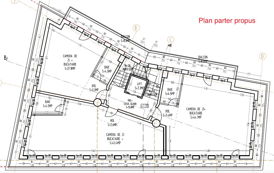
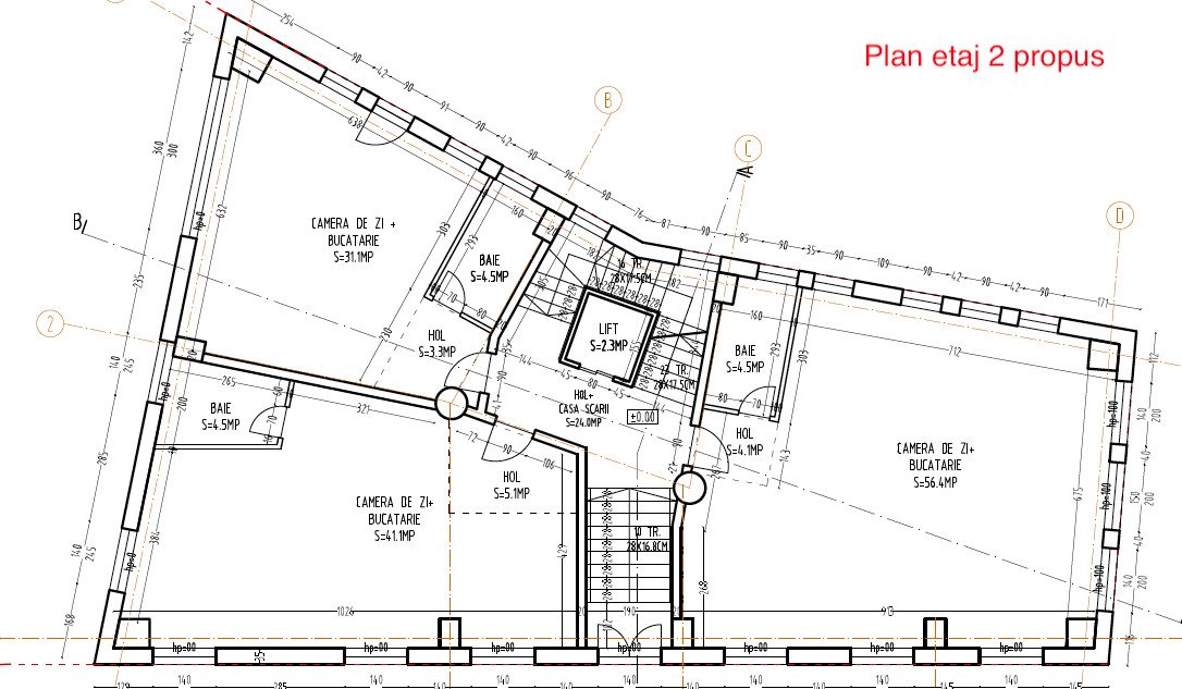
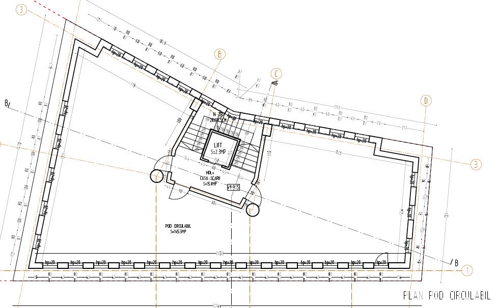
Suprafață totală de teren în proprietate 302 mp și se poate extinde până la 397 mp
Suprafața totală desfasurată a imobilului este de 657 mp
La cerere se poate pune la dispoziție Studiul Istoric dar și Punctul de vedere am inginerului de structură.
Certificat de urbanism disponibil pentru Supraetajare, recompartimentare și consolidare, autorizația de construire în curs de a fi obtinută.