















🏢 SPAȚIU DE BIROU DE ÎNCHIRIAT – ETAJUL 2
Kiseleff / Aviatorilor – Str. Emanoil Porumbaru
Un spațiu de birouri poziționat într-o zonă emblematică a Bucureștiului, dedicat companiilor care caută liniște, eficiență și un mediu de lucru bine organizat, într-un cadru premium.
🎥 Video de prezentare disponibil!
📌 Locație premium – Kiseleff / Aviatorilor
Strada Emanoil Porumbaru, zonă selectă, cu acces rapid către:
🚇 Metrou Aviatorilor (M2) – 170 m
🌳 Parcul Herăstrău / Regele Mihai I
📍 Bd. Kiseleff, Piața Charles de Gaulle, Primăverii, Calea Victoriei
🏢 Centre de business și ambasade
🚗 Zona de nord și Aeroport
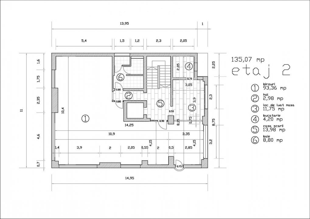
🏢 Spațiul oferit spre închiriere – ETAJUL 2
Etajul 2 este ideal pentru echipe operaționale și activități care necesită concentrare, oferind un cadru de lucru aerisit și bine iluminat.
📐 Suprafețe:
Suprafață totală: 135,07 mp
Suprafață utilă: 121 mp (fără casa scării)
🧩 Compartimentare:
mix de open-space și birouri individuale
posibilitate de săli de ședință
spații de lucru flexibile, ușor de adaptat nevoilor chiriașului
Spațiul beneficiază de iluminare naturală excelentă pe tot parcursul zilei, datorită ferestrelor ample, oferind un confort ridicat pentru echipe.
Acces prin casa scării și lift.
🔑 Disponibilitate: IMEDIATĂ
🛠️ Dotări și infrastructură tehnică
🔄 Clădire termoizolată / lift modern
❄️ Climatizare centralizată + aer proaspăt
🔐 Control acces + CCTV
🔋 Panouri fotovoltaice + panouri solare + generator
🔥 Sistem anti-incendiu, centrală gaz premium
🌐 Infrastructură IT enterprise
🗄️ Spații de depozitare
🚗 Garaj + locuri de parcare în fața clădirii
🔑 Avantaje cheie
✔️ Zonă ultracentrală și liniștită
✔️ Spațiu eficient, bine compartimentat
✔️ Iluminare naturală foarte bună
✔️ Costuri reduse de operare
📣 Ideal pentru:
IT & Software | Consultanță | Arhitectură & Design | Agenții creative | Companii corporate
📞 Vă invităm la vizionare!