




Spațiu comercial generos, situat în zona Casa de Cultură, una dintre cele mai active și bine conectate zone ale orașului, cu trafic pietonal și auto intens. Poziționarea oferă vizibilitate bună și acces facil către principalele artere, fiind potrivit pentru activități comerciale, showroom, clinică, sală de fitness, birouri sau centru de servicii.
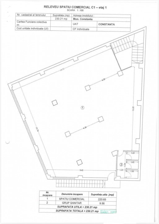
Imobilul este dispus pe parter și etaj, având o suprafață totală de 464 mp, configurată open space, ceea ce permite amenajarea și compartimentarea spațiului în funcție de necesitățile viitorului chiriaș.
Suprafața generoasă și compartimentarea flexibilă oferă multiple posibilități de organizare, fiind ideală pentru afaceri care necesită spațiu amplu pentru activitate, prezentare sau interacțiune cu clienții.
Proprietatea beneficiază de 5 locuri de parcare, un avantaj important pentru angajați și clienți.
Datorită dimensiunii, configurației și poziționării într-o zonă cu acces facil la transport și puncte de interes, spațiul reprezintă o opțiune potrivită pentru dezvoltarea unei afaceri într-o zonă bine cotată a orașului.