








De vanzare 6199 mp teren si spatiu depozitare 1574 mp in Crevedia
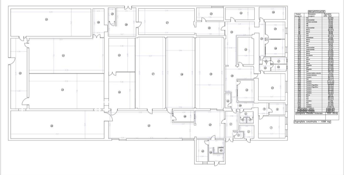
Vă propunem spre vânzare o hală de producție/depozitare amplasată pe un teren de 6199mp în localitatea Crevedia , cu acces facil la Soseaua Bucuresti- Targoviste.
Utilitati:
• Apa, canalizare, curent ,gaze
• Iluminat stradal si drum asfaltat
• Posibilitate de compartimentare
• Teren imprejmuit
• Acces direct la drum principal
Avantaje:
• Locatie excelenta, cu acces spre Buftea, Targoviste, Bucuresti, Ploiesti.
• Curte proprie generoasa, ideala pentru manevra camioane sau extindere constructie
• Proprietate potrivita pentru investitori sau pentru relocarea unei companii de productie
In prezent suprafata de 1100 mp ai halei este inchiriata.